
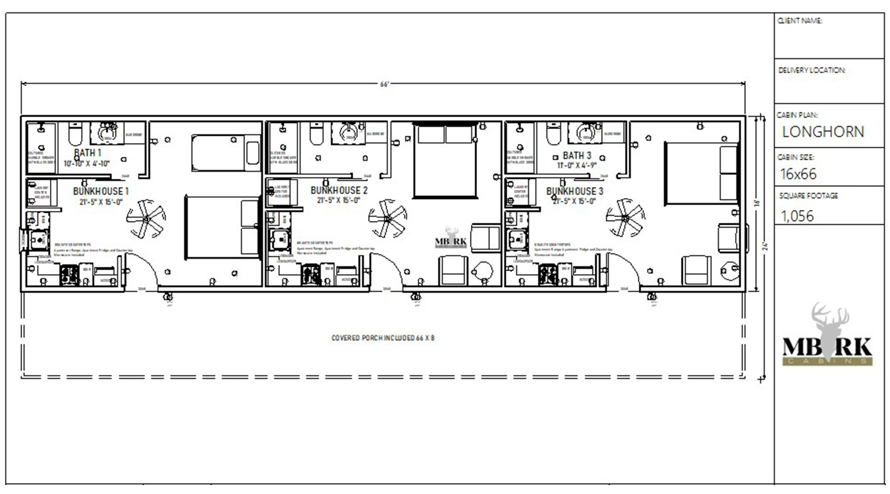
The Longhorn Bunkhouse sets the new standard for durable, self-sufficient housing. Built at a generous 16’x66′, this model is unique because it features three fully independent suites, each equipped with its own private full bath and full apartment-size kitchen. This level of self-contained living is ideal for multi-generational ranch housing, high-end rental property, or long-term crew accommodation where privacy and independence are non-negotiable. Like the legendary animal it’s named for, this ranch cabin stands for strength, endurance, and quality craftsmanship, delivered ready to operate.
Like the legendary Texas Longhorn, this bunkhouse stands for strength, independence, and pride in craftsmanship. Each private bunkroom includes its own kitchen and bath—a mark of comfort and self-reliance that mirrors the spirit of the open range. We chose the name for its Western Heritage, as the Texas Longhorn is a symbol of endurance, adaptability, and true Western grit. Built tough and ready for work crews, hunters, or ranch guests, the Longhorn Bunkhouse blends rugged durability with a touch of Western class. It’s big, bold, and built to handle whatever the trail brings, ensuring a strong, balanced, and enduring hunting cabin solution.
Provides three completely independent living spaces, perfect for long-term stays where personal space and autonomy are essential.
Each bunkroom includes an apartment-size range, refrigerator, and countertop microwave, allowing occupants to fully cook and live independently.
Every private bath features a low-maintenance, high-durability engineered stone shower with a glass door, ensuring a lasting, quality appearance.
A dedicated laundry area is included, adding the final touch of convenience required for true, self-sufficient, long-term ranch cabin living.
All kitchen and bathroom areas feature high-end granite countertops, elevating the cabin’s finish far above standard modular housing.
Space is maximized in each room with integrated wardrobe closets, providing efficient storage without sacrificing valuable floor space.