
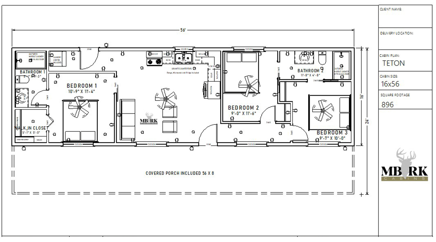
The Teton Cabin is a masterpiece of space optimization, delivering three comfortable bedrooms and two full bathrooms within an efficient 16×56 footprint. This three-bedroom cabin is designed to accommodate a family or a large crew for extended stays without the massive investment. Though featuring a smartly sized kitchen, it includes a full appliance suite and all our signature, durable options like granite countertops. It’s the ideal factory-built ranch cabin for families or operators who prioritize maximum occupancy and high-level craftsmanship, perfectly suited for use as a premium hunting cabin base camp or a rugged, permanent home.
We named this cabin The Teton after the magnificent Teton Range in Wyoming, an area symbolizing untamed strength and enduring grandeur. Like the Teton peaks that rise sharply from the valley floor, this ranch cabin stands tall and strong, built to withstand the elements and endure the test of time. The Teton region is renowned as one of North America’s premier areas for wildlife and hunting (featuring elk, moose, and mule deer), making this the perfect three-bedroom cabin connection for our outdoors-oriented customers who value quality craftsmanship, grit, and an elevated wilderness lifestyle.
Offers three dedicated bedrooms with access to two full bathrooms, ensuring ample privacy and sleeping space for families or multiple occupants.
The kitchen is equipped with a full-size range, microwave, and fridge, integrated into a combined kitchendining area to maximize the surrounding living space.
Includes our durable, cultured marble shower with glass door in both baths, providing low-maintenance longevity and premium aesthetics for high-use areas.
Both bathrooms feature low-maintenance, high-durability engineered stone showers, a premium finish that stands up to heavy use and outlasts fiberglass.
Comes complete with our signature durable options like mini-splits and granite countertops, delivering a quality cabin that’s truly ranch ready.
An impressive 8′ x 56′ covered front porch spans the entire length of the cabin, offering extensive shaded outdoor living and a protected entry point.